Salaberry-de-Valleyfield J6T6A7
Maison à étages | MLS: 16858738
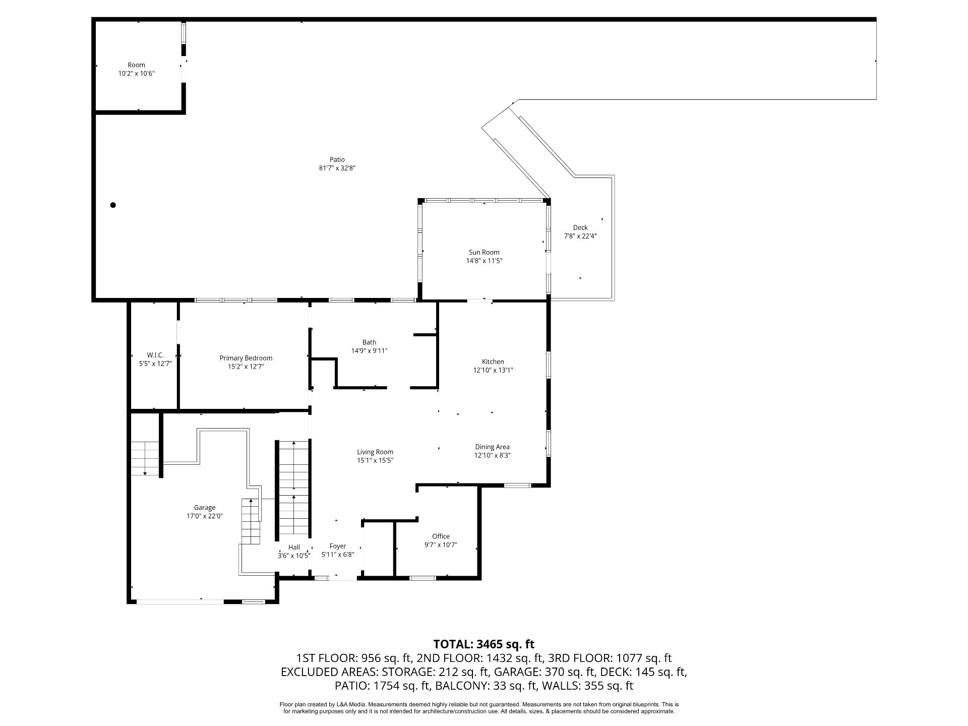
Propriété à étages spacieuse située dans un secteur paisible de Salaberry-de-Valleyfield! Offrant 4 chambres + 1 au sous-sol et 3 salles de bains, elle est idéale pour une grande famille. Vous serez charmé par son solarium 4 saisons lumineux, ses vastes espaces de vie et son garage chauffé. Plusieurs améliorations au fil des années (fenêtres, thermopompe, sous-sol). Cour aménagée et emplacement stratégique près des services et de l'autoroute 30. Une opportunité à ne pas manquer!
2 seuls propriétaires depuis la construction!
Améliorations:
- Toutes les fenêtres changées en 2019
- Sous sol entièrement rénové 2018-2019
- Salle de bains du RDC refaite en 2019
- Clôture installée en 2018
- Planchers flottants de vinyle au RDC et 2e étage en 2019
- Patio arrière refait en 2019/2020
À qui la chance? Une propriété offrant espace, confort et potentiel, prête à accueillir ses nouveaux propriétaires!
Inclus : Les luminaires, thermopompe, 2 aires climatisées, échangeur d'air (sur 2 étages), chauffe eau, système d'alarme non branché, restant des planchers flottants, hôte de cuisine et le lave-vaiselle
Exclus : Les stores, les rideaux et tringles et tous les électroménagers
| Chambre | Dimensions | Niveau | Revêtement |
|---|---|---|---|
| Hall d'entrée | 5.11 x 6.8 P | Rez-de-chaussée | Bois |
| Hall d'entrée | 5.11 x 6.8 P | Rez-de-chaussée | Bois |
| Salon | 15.1 x 15.5 P | Rez-de-chaussée | Bois |
| Salon | 15.1 x 15.5 P | Rez-de-chaussée | Bois |
| Cuisine | 12.10 x 21.4 P | Rez-de-chaussée | Bois |
| Cuisine | 12.10 x 21.4 P | Rez-de-chaussée | Bois |
| Chambre à coucher principale | 15.2 x 12.7 P | Rez-de-chaussée | Plancher flottant |
| Chambre à coucher principale | 15.2 x 12.7 P | Rez-de-chaussée | Plancher flottant |
| Chambre à coucher | 9.7 x 10.7 P | Rez-de-chaussée | Plancher flottant |
| Chambre à coucher | 9.7 x 10.7 P | Rez-de-chaussée | Plancher flottant |
| Salle de bains | 14.9 x 9.11 P | Rez-de-chaussée | Céramique |
| Salle de bains | 14.9 x 9.11 P | Rez-de-chaussée | Céramique |
| Solarium | 14.8 x 11.5 P | Rez-de-chaussée | Plancher flottant |
| Solarium | 14.8 x 11.5 P | Rez-de-chaussée | Plancher flottant |
| Hall d'entrée | 7.11 x 6.2 P | 2ième étage | Plancher flottant |
| Hall d'entrée | 7.11 x 6.2 P | 2ième étage | Plancher flottant |
| Cuisine | 8.11 x 10.3 P | 2ième étage | Plancher flottant |
| Cuisine | 8.11 x 10.3 P | 2ième étage | Plancher flottant |
| Salle à manger | 9.10 x 7.3 P | 2ième étage | Plancher flottant |
| Salle à manger | 9.10 x 7.3 P | 2ième étage | Plancher flottant |
| Chambre à coucher | 12.9 x 14.11 P | 2ième étage | Plancher flottant |
| Chambre à coucher | 12.9 x 14.11 P | 2ième étage | Plancher flottant |
| Chambre à coucher | 9.6 x 11.10 P | 2ième étage | Plancher flottant |
| Chambre à coucher | 9.6 x 11.10 P | 2ième étage | Plancher flottant |
| Salle familiale | 17.0 x 19.1 P | 2ième étage | Plancher flottant |
| Salle familiale | 17.0 x 19.1 P | 2ième étage | Plancher flottant |
| Salle familiale | 36.9 x 31.7 P | Sous-sol | Plancher flottant |
| Salle familiale | 36.9 x 31.7 P | Sous-sol | Plancher flottant |
| Chambre à coucher | 11.9 x 12.9 P | Sous-sol | Plancher flottant |
| Chambre à coucher | 11.9 x 12.9 P | Sous-sol | Plancher flottant |
| Salle de bains | 9.6 x 6.6 P | Sous-sol | Céramique |
| Salle de bains | 9.6 x 6.6 P | Sous-sol | Céramique |
| Corridor | 20.6 x 8.6 P | Sous-sol | Plancher flottant |
| Corridor | 20.6 x 8.6 P | Sous-sol | Plancher flottant |
| Fenêtres | Aluminium, PVC |
|---|---|
| Garage | Attaché, Chauffé, Intégré |
| Stationnement | Au garage, Extérieur |
| Proximité | Autoroute/Voie rapide, Cegep, École primaire, École secondaire, Garderie/CPE, Hôpital, Parc-espace vert, Piste cyclable |
| Toiture | Bardeaux d'asphalte |
| Fondation | Béton coulé |
| Revêtements | Brique, Vinyle |
| Équipement disponible | Climatiseur mural, Échangeur d'air, Thermopompe murale |
| Aménagement du terrain | Clôturé, Terrain/cour bordé de haies |
| Particularités | Coin de rue |
| Énergie pour le chauffage | Électricité |
| Système d'égouts | Municipal |
| Approvisionnement en eau | Municipalité |
| Allée | Pavé uni |
| Mode de chauffage | Plinthes à convection, Plinthes électriques, Radiant |
| Zonage | Résidentiel |
| Sous-sol | Totalement aménagé |